12 Wohnungen und ein große Einzelhandelsfläche sollten trotz dieser schmalen Platzverhältnisse realisiert werden. Zu Hilfe kam den Planer eine kooperative Planungsbehörde, so dass letztlich ein Vorderhaus mit sechs Wohnungen und ein Gartenhaus mit weiteren sechs Wohnungen errichtet werden konnte. Die zweigeschossige Einzelhandelsfläche im Erd- und Untergeschoss des Vorderhauses sollte zur Stärkung des Geschäftslebens in der beliebten Steglitzer Einkaufsstraße beitragen. Immerhin ist die Schlossstraße die Haupteinkaufsstraße dieses Berliner Ortsteils. Mit über 200 000 m² Verkaufsfläche gilt sie als größter Einzelhandelsstandort Berlins und Hauptzentrum für die südwestlichen Bezirke der Stadt. Kaum überraschend deshalb, dass sich eine bekannte Einzelhandelskette sich bereits kurz nach Planungsbeginn die Flächen gesichert hat.
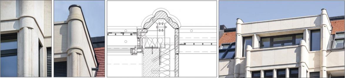
Das viergeschossige Vorderhaus schließt die Lücke unter Bezugnahme auf die vorhandenen Altbauten. Oberhalb der Traufe wurde ein Dachgeschoss mit geneigtem Ziegeldach errichtet. Die Straßenfassade wurde streng und symmetrisch gegliedert. Um ihr die gewünschte Plastizität zu verleihen, wurde die Mittelachse vom 1. bis zum 3. Obergeschoss durch einen 4-achsigen Erker betont. Die vertikalbetonte filigrane Natursteinfassade wurde aus Waldenbucher Sandstein gefertigt, ein Material, das auch am Kölner Dom, am Münchner Rathaus und am Schloss Neuschwanstein eingesetzt wurde (siehe Infokasten). Die größten der über 800 Werkstücke sind die profilierten Lisenen mit einem Gewicht von ca. 250 kg.
Die hellen Hoffassaden wurden in Putz ausgeführt und durch feine Gurtgesimse und Fensterfaschen zurückhaltend gegliedert. Durch die sorgfältige Detailierung sämtlicher Bauteile und die Wahl von nur wenige hochwertigen Materialien entstand ein besonders einheitlicher Gesamteindruck. Die Wohnungsgrößen der 2- bis 4- Zimmer-Wohnungen variieren zwischen 55 m² und 123 m². Das Erdgeschoss wurde eingeschossig in den Hof verlängert und erhielt auf dem Dach der Ladenfläche einen großen Dachgarten für die Bewohner.
Eine zweigeschossige Einzelhandelsfläche im Erd- und Untergeschoss
soll zur Stärkung des Geschäftslebens beitragen
Als weitere Lückenschließung im ruhigen hinteren Grundstückbereich wurde das fünfgeschossige Gartenhaus errichtet. Dieses verfügt je Etage über eine Wohnung. Die Erschließung erfolgt über Durchgänge im Vorderhaus.
Die Architektur des Büros Patzschke galt lange als umstritten; mittlerweile betrachtet man sie dagegen als stilprägend. Vieles, was heute ganz selbstverständlich erscheint, wie zum Beispiel der Stadtschlossaufbau, schien vorher undenkbar und ist nun Realität geworden. Über hundert Gebäude hat das Büro in den letzten fünf Jahrzehnten in Berlin gebaut. Diese prägen durch klassische Bezüge mit dezenter Selbstverständlichkeit das Berliner Stadtbild. Besonders bekannt wurde es dabei mit dem Neubau des Grand Hotels Kempinski Adlon in Berlin-Mitte von 1995 bis 1997.

Das besondere Merkmal der Hauptfassade sind die Naturstein- bzw- Steinmetzarbeiten. Ca. 800 Werkstücken hat die Stuttgarter Lauster Steinbau GmbH dafür gefertigt. Sie sind teils plattiert, teils Massivlisenen, das Gesamtgewicht des Steinmaterials beträgt 50 Tonnen. Die größten und schwersten Werkstücke sind die profilierten Lisenen, bei einer Abmessung von bis zu ca. 160 x 40 x 20 cm und einem Gewicht von ca. 250 kg. Eine Besonderheit ist die Art der Verankerung dieser Massivteile mit einer Edelstahl-Aluminium-Unterkonstruktion, die von Decke zu Decke spannt, bzw. Spezialkonsolen. Alles wurde objektbezogen geplant. Besonders reizvoll für die Steinmetze war die Aufgabe, die Profilierungen der Lisenen und die Kannelierungen der Wandplatten herzustellen. Eingesetzt wurde Waldenbucher Sandstein, Stubensandstein, Subarkose der Löwensteinformation des mittleren Keupers. Das Material hat als Hauptgemengeanteil Quarz. Daraus resultiert die gute Haltbarkeit und Widerstandsfähigkeit dieses Sandsteins.